|
SPNO活塞杆密封-SPNO轴用密封-杆用密封
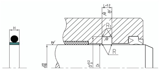
1.标准材料
密封体:填充聚四氟乙烯F-PTFE
弹性体:丁腈橡胶NBR或氟橡胶FKM

2.应用范围
这是标准组合密封,可用于广泛的操作。
设计选用时可参考NOK公司SPNO系列标准。
3.特性及优点
1.沟槽简单,可用于整体式活塞。
2.摩擦力小,无爬行现象。
3.静密封性能非常好。确保有很高的耐磨性。
4.由于较大的挤出间隙,在有污物的介质中也可安全使用。
5. 因单个密封件有双向密封能力,故省去了安装空间。
6.适于最新环保安全的液压液(生物油)。 |