temp-thumb
产品详细资料

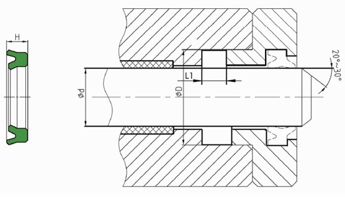
轴用YX圈



轴用Y型圈-GY1轴用Y形圈-轴用YX形密封圈-B3活塞杆密封-D-2活塞杆密封-U型圈RUO

 轴用Y型圈-GY1轴用Y形圈-轴用YX形密封圈-B3活塞杆密封-D-2活塞杆密封-U型圈RUO

 
 
1.标准材料
密封环:聚氨酯PU
 
2.应用范围
--可以用在普通橡胶或织物增强橡胶的性能达不到要求的各种场合。主要用于重载行走机械或工业液压中的活塞和柱塞的密封,沟槽和直径尺寸分别符合ISO5597/1和ISO3320国际标准的要求。
设计选用时可参考Trelleborg公司ROU系列、Parker公司的B3系列、DZ公司D-2系列标准。
 
3.特性及优点
1.安装容易;
2.低永久压缩变形;
3.适应于恶劣的工况;
4.很高的抗挤出能力;
5.优异的耐磨损性能;
6.对冲击载荷和压力峰值不敏感。

 

在线服务:

QQ: 

特密销售

加入收藏夹